1、基坑地层注浆加固
基坑地层注浆加固是通过注浆的手段增加土体的强度、刚度和抗渗性,使其满足基坑工程的要求。
基坑地层注浆加固的目的一般如下所述:
(1)减少挡土墙的水平位移。
(2)使基坑挡土墙被动区产生较大抗力。
(3)减小基坑挡土墙主动区土压力。
(4)增加基坑底部抗隆起稳定性。
(5)在长、大基坑中,防止因分段开挖造成的基坑内土体纵向失稳。
(6)防止挡土墙接缝漏水。
(7)增加挡土墙的垂直承载力。
基坑地层注浆加固包括基坑内底部土体加固、基坑外阴角加固、围护墙接缝防水、围护墙底部脚趾加固等,从平面布局上区分有满膛加固、抽条加固等形式。如前所述,基坑内底部土体加固和基坑外阴角加固等大面积的加固已逐渐被深层搅拌、高压喷射注浆等强度较高、稳定性较好的加固方法所替代,注浆法在这方面较多地应用在开挖深度小、变形要求低的基坑工程或是局部加固上;围护墙接缝防水施工现在也较多地采用高压喷射注浆的方法,因为注浆法毕竟存在一定的不确定性和不连续性,尤其在细颗粒土层中较为明显,目前更多地应用于开挖深度小、地质条件较好、周边环境保护要求较低的基坑工程;围护墙底部脚趾注浆目前应用较为广泛。
围护墙底部脚趾注浆采用埋管注浆法施工,浆液一般采用水泥浆液。其他注浆施工可采用袖阀管注浆法、注浆管注浆法、花管注浆法,其加固机理一般主要表现为劈裂注浆形式,浆液可根据需要选用水泥浆液或水泥-水玻璃双液浆;以增加土体强度、刚度为目的的注浆施工还可采用压密注浆工艺,如CCG工法等。
例:工程实例1-上海延安东路越江隧道浦西引道段106A-104地基注浆加固
延安东路越江隧道是上海第二条穿越黄浦江底的公路隧道,全长2261m,其主体部分是圆形隧道,直径为11m,采用盾构法施工。在1号井以西的引道段采用地下连续墙围护进行开挖施工,当引道段接近河南路时,分成两条独立的车道,所以在106A段的跨度达21.4m,在106~105段的开挖深度达11m。基坑位于市中心区域,北侧约10m处有一幢6层高亚洲大楼,南侧有一幢综合贸易楼,西侧为交通要道河南路。为减少开挖时围护结构的位移,保护周围的建筑物,保证交通安全,采用注浆法对基坑内深层土体进行加固。
施工地区地层大致可划分为3层:
(1)杂填土:厚度4.3~4.5m,主要由沥青、花岗岩抛石块石及碎石、砖瓦、废钢板、回填土等组成。
(2)淤泥质粉质黏土:厚度7.5~8.5m,灰色饱和流塑,局部含有少量薄层粉细砂和贝壳,含水量32.8%,孔隙比0.85。
(3)淤泥质黏土:灰色软塑,局部含少量薄层粉细砂、贝壳和植物根茎,含水量50.7%,孔隙比1.39。


注浆采用袖阀管注浆法,注浆孔孔距1.5m,排距1.5m,孔深25m,注浆加固深度范围-10~-25m,注浆加固面积414m2,体积7245m3,钻孔212只,注入水泥浆液近2000m3。
注浆加固后,土体N值由未加固时的0~1提高到3~5,用跨孔法测定声波的横波速度,注浆后有明显提高,横波速度(vt)提高20%~45%,动弹模量(Ed)提高68%~138%,动剪切模量(Gd)提高52%~138%,详见表21-7。

注浆加固后约2个月,当开挖到注浆加固深度时,可见层厚1~2cm的薄片状浆液凝固体分布在土体中,土体空隙处和薄弱处都充满了浆液凝固体,地下连续墙与软土的接触部位有大量浆液凝固体,提高了地下连续墙与土体的摩擦力。基坑开挖地下连续墙最大位移量仅为2.5cm,周围最大沉降量为2.5cm。
例:工程实例2-上海地铁M8线鞍山路车站基坑注浆加固
上海地铁M8线鞍山路车站基坑长约149m,标准段宽19.6m,挖深约13.12m;两侧端头井宽约23.8m,挖深约14.27~14.97m。该车站基坑为二级环境保护基坑,采用明挖法施工,地下连续墙围护,基坑底部处于灰色淤泥质黏土和灰色黏土中。
为了提高基坑底部的土体强度和基床系数,增强坑底稳定和围护结构的刚度,减少基坑围护变形和坑外土体变形,端头井、标准段与部份连续墙外侧实施了CCG注浆工法加固。
设计强度为静力触探试验ps平均值1.2MPa,设计注浆形成的柱状砂浆体直径为φ600mm,间距为1.3m,桩长为坑底下3~3.4m,部份连续墙外侧砂浆体直径为φ600㎜,桩长16.8m。
在注浆施工同时,基坑内进行了井点降水。
在注浆区龄期超过28天后,依据规范要求,按照监理所确定的抽检位置,采用静力触探试验法,对注浆加固区进行了强度测试,共测试8个孔,加固后的土体强度较原状土有很大的提高,坑底灰色淤泥质黏土的静力触探试验ps值由原来的0.46MPa提高到0.8MPa~1.4MPa;坑底灰色黏土的静力触探试验ps值由原来的0.59MPa提高到1.0MPa~1.5MPa,抽检孔位的加固区土体ps平均值达到1.24MPa。基坑开挖时,可见一个个压密注浆后形成的砂浆结石体,基坑底板浇筑完成后,地下墙围护位移为1.5cm,基坑周围的建筑、地下管线均安然无恙。
在这个基坑东端头井开挖中,由于需先挖除坑内5m深的地下防空洞,造成了南北两侧地下连续墙发生了较大的水平变形。后在两侧地下连续墙墙体旁,深11m~13m范围内,采用CCG注浆工法实施纠偏,取得了显著的纠偏效果。
2、周围环境保护跟踪注浆
随着工程建设的不断发展,基坑工程面对的环境条件越来越复杂,在环境保护方面的要求也不断提高,跟踪注浆作为控制基坑周围建筑物、管线等变形的有效辅助手段,得到了广泛应用。
跟踪注浆从其作用机理来说可分为主动区补偿地层损失注浆、被动区注浆和矫正变形注浆3大类。
主动区补偿地层损失注浆的作用机理是在基坑开挖过程中,通过注浆的手段及时补偿由于开挖引起的水土损失,减小周边建筑物、地下管线等的变形量。
被动区注浆的作用机理是利用注浆时引起水土压力增加,作用在围护墙上,短时间内增大被动区抵抗围护墙变形的能力,减弱围护墙变形增大的趋势,同时随着浆液凝固,可提高被动区土体强度而对围护墙的变形起限制作用。
矫正变形注浆的作用机理是基坑周围建筑物和管线由于开挖施工产生了变形,通过注浆的手段稳定其变形速率,在可能的情况下,利用注浆时土体膨胀、隆起的特性,对变形进行适当的矫正,减少变形量和不均匀变形量。
跟踪注浆可采用袖阀管注浆法、注浆管注浆法、花管注浆法等方法施工,被动区注浆和矫正变形注浆还可采用低坍落度浆液压密注浆的方法进行施工,例如采用低坍落度水泥砂浆的CCG工法。
被动区注浆和矫正变形注浆在采用袖阀管注浆法、注浆管注浆法、花管注浆法等方法施工时选用的浆液应具有快凝早强的特性,例如水泥-水玻璃双液浆。主动区补偿地层损失注浆可根据实际情况选用水泥浆液或水泥-水玻璃双液浆。
跟踪注浆的目的是控制基坑周围建筑物、管线等的变形,同时注浆还具有非常明显的副作用,特别是在主动区进行注浆时带有一定的风险,因此跟踪注浆必须在严格的信息化施工管理下进行。
需要指明的是,跟踪注浆只是基坑工程周围环境保护的辅助手段,其最主要的措施还是科学合理的支护体系设计和开挖施工管理。
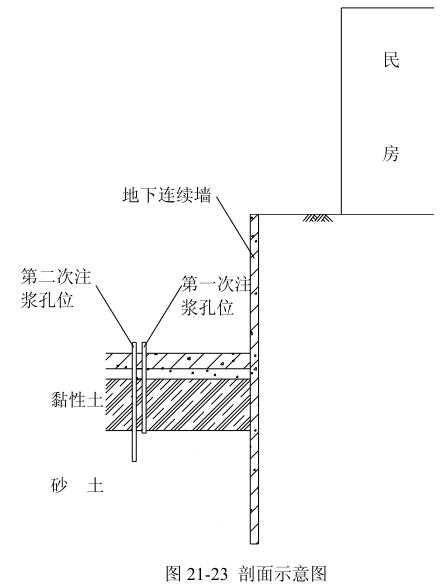
工程实例1-上海地铁二号线河南路车站东海商都保护跟踪注浆
河南路车站是上海地铁2号线建造难度较大的一座车站,具有高难度的环境保护要求。车站基坑标准段开挖深度约16m,宽22m,采用地下连续墙钢支撑支护体系。
东海商都与地下连续墙相距仅约1m,对围护形成约为80kN/m2的大面积超载。东海商都建于20世纪30年代,采用独立木桩基础,对地层位移非常敏感,其环境保护等级为特级。为保护东海商都,其邻近的基坑部分采用顺做1层逆做2层的施工方法,在围护结构和东海商都之间设置拱形的隔离桩,隔离桩采用树根桩方法施工,在开挖期间采取了跟踪注浆的辅助手段。
跟踪注浆包括主动区补偿地层损失注浆和被动区注浆,浆液均为水泥-水玻璃双液浆。主动区补偿地层损失注浆在隔离桩和地下连续墙之间的区域施工,采用了袖阀管注浆法,由于东海商都的木桩与围护墙距离很近,主动区注浆量较小;被动区注浆在靠近地下连续墙的开挖面以下区域施工,采用了注浆管注浆法。图21-17是东海商都与地铁车站基坑相对位置的平面示意图,图21-18是注浆孔的平面布置图。


跟踪注浆时对地下连续墙变形、建筑物沉降等进行了严密的监测,并根据监测结果指导跟踪注浆的施工。通过监测数据发现,被动区注浆施工时,在每一次注浆及稍后时间内地下连续墙变形和建筑物沉降的增量都明显减少,甚至出现负值;整个开挖工程中,进行跟踪注浆的时间段与未进行跟踪注浆的前期相比,建筑物的沉降速率有明显的降低。这些情况都充分说明了跟踪注浆有效地抑止了变形的发展。
由于采取了一系列有效的保护措施,包括在严格信息化施工管理下的跟踪注浆,成功地在基坑开挖期间对东海商都进行了保护。
例:工程实例2-大上海时代广场基坑工程φ900上水管保护跟踪注浆
大上海时代广场工程位于上海繁华闹市区,东邻柳林路、柳林大厦,西靠淮海公园,南面是大量旧式民居,北面为淮海中路。基坑开挖面积约11000m2,开挖深度17.05m,局部最深处达19m,围护采用1m厚地下连续墙,支撑设4道,其中角撑均为钢筋混凝土支撑,中部直撑第1道为钢筋混凝土支撑,其余3道为钢支撑。该工程地质条件较差,土层分布复杂,为典型的上海地区软土地基。
该基坑四周存在大量分布复杂的地下管线,其中位于柳林路上的一根φ900上水管是该基坑工程环境保护的重点对象。该管线管径大、年代久,一旦破坏影响极大且难以修理,而在附近基坑施工已使其发生过一定的沉降,采用雷达探测方法发现该管线所处的柳林路道路地基状况不佳。
在施工前期未能对该管线进行直接监测,仅对其相邻的电缆线布置了测点。当基坑开挖深度达12m时,测点的累计沉降值达到38.3~51.3mm,考虑到至基坑底部还有5m,为保证该管线安全,对其进行了跟踪注浆保护,注浆采用袖阀管注浆法施工,浆液为水泥-水玻璃双液浆。
为保证注浆效果,防止注浆对管线产生不利影响,在跟踪注浆施工前对该管线进行了直接测点布置,布置方法为以每节管段长(6m)为间距开挖路面使管线局部暴露,在管顶焊1根钢筋作为沉降测点,对应监测点位置在管线一侧以2m为间距布置注浆孔。

跟踪注浆在严格信息化施工管理下进行,根据每日监测点的沉降监测数据绘制管线的沉降曲线,并计算出每段的曲率半径,对曲率半径超出允许值的区段计算出欲使其恢复至允许值范围的注浆抬高量,在此基础上选择合适的注浆点,对管线进行抬升,施工时进行即时监测控制管线抬高量。
自实施跟踪注浆以后,管线沉降速率明显减缓,通过对管线曲率半径的控制,使管线能处于安全状态,在基坑开挖过程中成功地保护了管线。
3、注浆堵漏抢险
基坑工程的风险控制很大一部分在于水的治理,一旦基坑发生渗漏,就会伴随着大量的水土流失,若不及时封堵,将会产生严重后果。注浆法作为一种设备简单、施工方便、见效快的堵漏施工工艺,较多地在堵漏抢险中得到应用并取得很好的效果。
注浆堵漏的基本作用机理为通过注浆设备将浆液注入至土层中的渗漏水通道,通过浆液的不断凝固、堆积,将渗漏水通道堵塞,从而解决渗漏水问题。注浆堵漏的作用机理决定了该技术比较适用于解决范围较小的渗漏水问题。
注浆堵漏是在动水的条件下施工,必须根据工程实际情况,合理选择施工工艺和注浆浆液,才能取得良好的效果。
注浆堵漏对施工工艺的要求就是设备和工艺简单,施工速度快,以满足抢险工程快速反应的要求。施工工艺一般选择注浆管注浆法、花管注浆法,成孔施工在深度较小的情况下一般采用振入方式;深度较大时宜选择施工速度快的振动式凿岩钻机钻孔,然后将注浆管或花管放入孔内进行注浆。在情况不是很紧急,并且注浆深度范围较大时,也可在孔内插入单向密封塑料阀管,以方便注浆芯管上下移动。在易产生塌孔的地层施工时,注浆管或花管可能无法顺利置入孔中,也可选择钻杆注浆法直接进行注浆。
注浆堵漏对浆液的要求是快速凝结和早强,目前应用较多的是油溶性聚氨酯浆液和水泥-水玻璃双液浆。
油溶性聚氨酯浆液是采用多异氰酸酯和聚醚树脂等作为主要原材料,加入各种附加剂配制而成。由于浆液中含有未反应的多异氰基团,所以遇水后会发生反应(水解反应),放出CO2气体(发泡反应)致使凝胶体体积迅速膨胀,同时还会发生连锁反应,产生交联形成泡沫凝固体,另外发泡过程会产生二次渗透,从而对地层有加固和防渗作用。油溶性聚氨酯浆液凝固时间为数十秒至数十分钟,在堵漏施工中一般控制在1分钟上下,固砂体强度一兆帕至十几兆帕,注后渗透系数为10-5~10-7cm/s。
油溶性聚氨酯浆液的优点是可注性好、固砂强度高、遇水反应凝胶时间快,浆液流失少、适应性强、止水作用见效快,特别适用于紧急情况下的堵漏处理。其缺点是决定凝胶时间的因素较多,包括主剂和外加剂的影响、环境温度的影响、地下水pH值及与地下水的接触状态等,故其凝胶时间不好控制;材料价格较贵;遇水反应的特性往往造成注浆管移动困难,在要求注浆深度范围较大的情况下使用有一定的局限性;另外油溶性聚氨酯浆液有毒、易燃,使用中应特别注意防毒、防火。
由于不同厂家、不同批次的材料在性能上有一定差异,现场环境条件也不一致,在注浆施工前应对浆液进行小样试验,以确定合理的浆液配比。
如前所述,基坑工程发生渗漏往往会产生严重后果,因此制定和落实有效的控制预案是非常必要的。在施工前应落实注浆堵漏的施工队伍、设备和材料,并预先分析可能发生渗漏水的位置、原因以及应对措施,以保证一旦发生渗漏水情况能得到及时处理。在注浆堵漏施工前应对渗漏水情况、发生原因和渗漏水通道位置等进行信息收集和分析,并确定合理的处理方案、施工工艺和注浆浆液,以保证注浆堵漏施工有的放矢。注浆堵漏是在动水条件下施工,而浆液的凝固、堆积是需要一定时间的,若水流较大,就会造成浆液来不及凝固、堆积就被水流冲走,因此在注浆前一般要用黏土、水泥包等对漏水处进行适当的封堵。出于同样的原因,注浆孔不宜紧靠漏水处,一般以距离1~2m为宜。
注浆堵漏施工时应对渗漏水情况的变化、浆液是否沿渗漏水流出及流失量大小等情况进行仔细观察,并及时调整施工位置和浆液配比。
注浆施工时浆液是在一定压力下进入土体,而浆液的快凝早强也对压力的消散产生负面影响,而且施工一般在基坑主动区开展,因此注浆堵漏施工可能会对围护结构及周边环境产生不利影响,所以应对围护结构和周边环境进行严密的监测。
例:工程实例1
某地铁车站基坑采用端头井与标准段分部开挖的方式施工,围护结构为地下连续墙,端头井与标准段之间采用封头墙隔离。端头井开挖深度约16m,坑底以下土层为砂质粉土。
基坑开挖期间很正常,素混凝土垫层浇注完毕1天后发现在靠近封头地下连续墙“T”形幅处的垫层发生隆起,为释放压力,施工方将该处垫层凿穿,出现了大量涌水涌砂现象,该处基坑附近尚有不少民房等建筑物,一旦出现大量水土流失,后果不堪设想。


施工方启动了紧急预案,现场成立抢险指挥部,调动人力物力,使用黏土、包装水泥等对涌水点进行封堵,降低了水土流失速度,同时安排专业注浆施工队伍进行注浆堵漏。
在施工准备期间,召开了堵漏方案讨论会,根据现场观察情况和施工方介绍的施工以及渗漏发生情况综合分析,认为本次渗漏原因为施工方为方便施工,除第一道支撑外,未按设计要求在“T”形幅处设置钢筋混凝土角撑,基坑开挖打破了“T”形幅处的平衡,造成其发生转动,2号缝在转动后张角向内,1号缝处则张角向外,漏水位置应在1号缝处,因坑底以上均为黏性土,故开挖期间未出现问题。考虑到未开挖土体对围护结构的约束性,1号缝的漏水缝隙不会很深,同时考虑到情况紧急,会议决定采用注浆管注浆法进行施工,浆液采用油溶性聚氨酯浆液,注浆深度为坑底以下5m。
堵漏方案明确后,由专业注浆队伍立即展开施工,采用大功率气动钻机在基坑外侧距1号缝约1.5m处钻孔至开挖面以下5m,在孔内放入注浆管,为确认注浆孔位的有效性,先注入少量凝固时间较长的浆液,在发现浆液随水流进入基坑后,迅速配制凝结时间短的浆液进行注浆,用1个小时左右的时间消除了渗漏水现象。
例:工程实例2
某地铁车站所处地层比较复杂,为黏性土、砂土互层,基坑底部为5m厚的黏性土层,以下为含微承压水的砂土层。由于底部黏性土层足以抵抗下部的承压水头,基坑开挖和底板制作均顺利完成,在钻孔安装接地装置时,将黏性土层钻穿,发生了大量涌水涌砂情况,在出现险情一侧基坑外部的几幢6层居民楼均不同程度地发生沉降。

险情出现后,施工方马上安排专业注浆队伍进场抢险,结合现场条件,采用注浆管注浆法在原钻孔处进行注浆堵漏,浆液采用水泥-水玻璃双液浆。在注浆施工时发现浆液被水流冲出,无法封堵漏水点。针对这种情况,有关专家会同注浆技术人员现场会诊,一致认为注浆深度太浅,浆液来不及凝固堆积就被冲出孔外;决定调整施工方案,加大注浆深度,注浆管进入砂土层3m,同时对浆液配比进行调整,缩短初凝时间,提高早期强度。
注浆队伍按照调整的方案展开施工,在原孔位无法施工的情况下,在其附近采用振入的方式使注浆管进入砂土层3m,按照调整好的配比进行水泥-水玻璃双液注浆,一开始尚有部分浆液被水流带出,随着浆液在砂土层里不断凝固堆积,水流和被带出的浆液逐渐减少,直至渗漏点被完全封堵。




















