根据国家人民防空办公室关于人防技术“十一五”计划的要求,目前医院新建工程普遍要求设置人防工程。医院新建的人防工程应当优先考虑人防医疗救护工程,并将其作为平时医疗体系的一部分投入使用。
1医疗救护工程概况
在现代战争条件下,人防医疗救护工程应是战时组织人员对伤员独立进行早期救治的医疗机构,根据作用不同分为三级。
一等:中心医院工程,主要承担对伤员的早期治疗和部分专科治疗。
二等:急救医院工程,主要承担对伤员的早期治疗。
三等:救护站工程,主要承担对伤员的紧急救治。
2急救医院功能简介
人防急救医院分为第一密闭区和第二密闭区,二者用洗消室和防毒通道相连接,组成一个防护单元。这一形式可满足防核、防化的要求。
2.1第一密闭区
第一密闭区是急救医院的门急诊部,位于第一防毒通道与第二防毒通道之间,由分类厅、急救室、抗休克厅、诊察室、污物间、厕所、盥洗室等组成,战时允许轻微染毒。
2.2第二密闭区
第二密闭区是急救医院主体部分,主要由手术室、细菌检验室、生化室、麻醉器械室、无菌敷料器械室、X光室、配血室、病房、医护办公室、男女更衣浴厕、污物室、换鞋室、收发室等组成。其设置应符合下列要求:合理的设计应按照清洁区、半污染区、污染区控制气流流向。手术室、无菌敷料器械室、药库、医护人员办公区等属于清洁区,相对于周围区域应保持正压。X光室、各种检查室属于半污染区。干净空气从医护人员办公区流向检查室,再流向各种实验室。细菌检验室、生化室、污洗间等属于污染区。整个污染区域应维持负压。普通病房为清洁区,保持正压;隔离病房为污染区,保持负压。
3急救医院通风系统
战时急救医院通风系统设置清洁式通风、滤毒式通风和隔绝通风3种通风方式。由于人防工程是密闭的地下空间,通风系统的设计应确保医护人员和伤病员在战时的生活与治疗的环境要求,医疗救护站的防护通风标准见表1。战时清洁式通风时,人防医疗救护工程的各类用房应根据使用要求设置机械送、排风系统。
表1人民防空医疗救护工程防护通风标准

3.1进风系统
1)清洁进风:室外进风口→防倒塌风井→防爆波活门→进风扩散室→过滤器→人防密闭阀门→人防送风机→室内。
2)滤毒进风:室外进风口→防倒塌风井→防爆波活门→扩散室→过滤器→过滤吸收器→人防密闭阀→人防送风机→室内。
3)隔绝通风:室内外停止空气交换,由通风机使室内空气自循环。
进风口部系统原理图见图1,进风方式转换操作见表2。


3.2排风系统
1)清洁排风:室内清洁区排风机→人防密闭阀→风管→扩散室→防倒塌风井→室外排风口。
2)滤毒超压排风:室内清洁区→超压自动排气活门→脱衣室及防毒通道→人防密闭阀→风管→扩散室→防倒塌风井→室外排风口。
排风口部系统原理图见图2,排风方式转换操作见表3。


4固定电站通风系统
固定电站设置独立的进、排风系统。利用室外空气降低发电机房的温度,按消除余热计算通风量。
1)柴油发电机房战时为染毒区,设清洁式和隔绝式防护通风。
清洁式通风按排除有害气体计算通风量。隔绝式通风时,当室内有害气体浓度超过标准时,也可开启进、排风机。柴油发电机组燃烧空气管直接吸入风井内的新鲜空气,以提供柴油机所需的燃烧空气量。电站不设进风滤尘器,利用柴油发电机组自带的进气空气滤清器。
2)控制室战时为清洁区,设清洁式、滤毒式和隔绝式3种通风方式。
控制室的通风与战时急救医院结合设置,不设单独的除尘滤毒设备。滤毒式通风按防毒通道40h-1换气次数计算。隔绝式通风时内部空气循环。
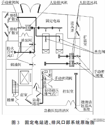
室内设计计算参数见表4,固定电站进、排风口部系统原理见图3。


5防化设计
人防急救医院设置空气放射性监测和空气染毒监测。在过滤吸收器的总出风管上设置DN15(热镀锌钢管)的尾气监测取样管。在滤尘器进风管道上设置DN32(热镀锌钢管)的空气放射性监测取样管,取样管口位于风管中心。在滤尘器的前后设置DN15(热镀锌钢管)的压差测量管。
防化值班室内设置测压装置。该装置由倾斜式微压计、连接软管、铜球阀和通至室外的测压管组成。除了测压装置,在防化值班室内设置毒剂报警器。毒剂探头设在进风竖井的壁龛内或支架上,探头外壳接地。毒剂报警器的探头与主机的连接电缆穿管预埋内径为50mm的镀锌钢管。
防化实验室内设置自循环滤毒通风装置。管线、阀门及风机均安装到位。
6平战转换
现在90%以上的人防工程都是平战结合使用的。人防工程通风系统较多,相互转换复杂,在设计初期应充分考虑各通风系统的转换,可以节约投资,并减少平战转换工作量。
根据RFJ005-2011《人民防空医疗救护工程设计标准》、GB50038-2005《人民防空地下室设计规范》等规范,滤毒通风系统的粗效过滤器和过滤吸收器应安装到位,过滤吸收器平时就位,两头不得拆封。防化化验室自循环滤毒通风装置、通风柜、管线、阀门及风机均应安装到位。手术室内的固定设备需在工程施工时一次完成,不得实施转换。
根据规范要求,医疗使用功能的转换措施应在15天内完成。所以,战时通风管道及风口应尽量利用平时的通风管道及风口,但值得注意的是,必须在接口处设置转换阀门。
7工程案例
本文以某人防急救医院为例,对战时通风系统做一介绍。
该医院地下1层的防空地下室按平战两用设计,平时为库房,战时为五级急救医院,抗力等级核5级,防化级别乙级,防护面积2680m2,急救医院掩蔽人数为160人。
7.1急救医院选型设计
急救医院战时通风计算见表5,根据计算结果验算清洁通风和滤毒通风时人员的新风量,见表6。

注:式中q1为掩蔽人员清洁通风量设计计算,m3/h;q2为掩蔽人员滤毒通风量设计计算值,m3/h;V为防空地下室清洁区的体积,m3,取7030m3;C为防空地下室室内CO2容许体积分数,%;CO为隔绝防护前防空地下室室内CO2初始体积分数,%;C1为清洁区内人员呼出的CO2量,L/(m3·h);N为室内掩蔽人数,人;VF为战时主要出入口最小防毒通道的有效体积,m3,取45.3m3;L滤毒为按换气次数计算的滤毒通风量,m3/h;LO为超压排气活门的额定风量,m3/h。

注:L清洁为按换气次数计算的清洁通风量,m3/h。
本工程设有固定电站,战时可提供稳定可靠的电源。所以,战时选用电动风机。
根据计算风量,选用2台送风机。其中,1台风量为4000m3/h的风机在清洁通风和隔绝通风时运行;另1台风量为2600m3/h的风机在滤毒通风时和滤毒间换气时运行。
选用3台SR78-1000型过滤吸收器;1台LWP-D型油网滤尘器5型(4个滤尘器)。
相应选用2台排风机。第一密闭区选用1台风量为4000m3/h的风机;第二密闭区选用1台风量为3000m3/h的风机。清洁通风时,2台排风机同时运行,滤毒通风和隔绝通风时2台排风机全部关闭。
7.2固定电站选型设计
固定电站战时通风量计算结果见表7,固定电站控制室战时通风量计算结果见表8。

根据计算,清洁通风量为730m3/h,滤毒通风量为500m3/h,选用1台SR78-1000型过滤吸收器。
7.3平战转换
本工程战时为人防急救医院,平时为库房。库房隔墙与战时急救医院大体相同。走廊内的通风主管道平时和战时合用,房间内的通风支管道临战安装,并在规定转换时限内完成。
滤毒通风系统的粗效过滤器、过滤吸收器和防化化验室自循环滤毒通风装置、通风柜、管线、阀门及风机均安装到位。
8结语
在地下室人防工程中,要采取合理有效的措施防止外界污染空气进入工程内部。良好的空气品质对于人员在防空工程内生存与工作起着重要作用。另外,人防工程平战转换功能设计的科学性和合理性,是实现人防工程战备功能的关键。在考虑人防工程战时功能的同时,也要兼顾平时功能,不能过度增加平战转换的工作量,妨碍战时转换的时效性和有效性。




















