泵站作为水利工程中不可缺少的重要组成部分,其运行工程对水利建设具有重要意义。泵站主要任务是承担泵站所在地区的防洪防涝、调水灌溉以及生活供水等任务;泵站的运行积极推动了我们国家在水资源方面的合理配置工作;提高了该地区水资源的利用率。
什么是泵站呢?
泵站是能提供有一定压力和流量的液压动力和气压动力的装置和工程称泵和泵站工程。泵站的进水、出水、泵房等建筑物的总称。油箱、电机和泵这三样东西是主要部件,但还有很多辅助设备,根据实际情况需要增减,如供油设备、压缩空气设备、充水设备、供水、排水设备、通风设备、起重设备等等。

泵站有排水泵站和给水泵站之分,今天我们来了解一下排水泵站。
排水泵站的特点为输送介质含大量杂质,来流流量变化大。按排水性质分,可分为污水泵站(生活、生产)、雨水泵站;按作用位置分,可分为中途(区域)泵站、终点泵站。
排水泵站基本类型:
合建式圆形泵站
合建式矩形泵站
分建式矩形泵站
(一)合建式圆形泵站:适用于中、小型排水量、水泵不超过4台。
优点:圆形结构受力条件好,便于沉井法施工,降低工程造价,水泵启动方便,易于根据吸水井中水位实现自动操作。
缺点:机器内机组与附属设备布置较困难,当泵房很深时,工人上下不便,且电动机容易受潮。

1—排水管道2—集水池3—机器间4—压水管5—卧式水泵6—格栅
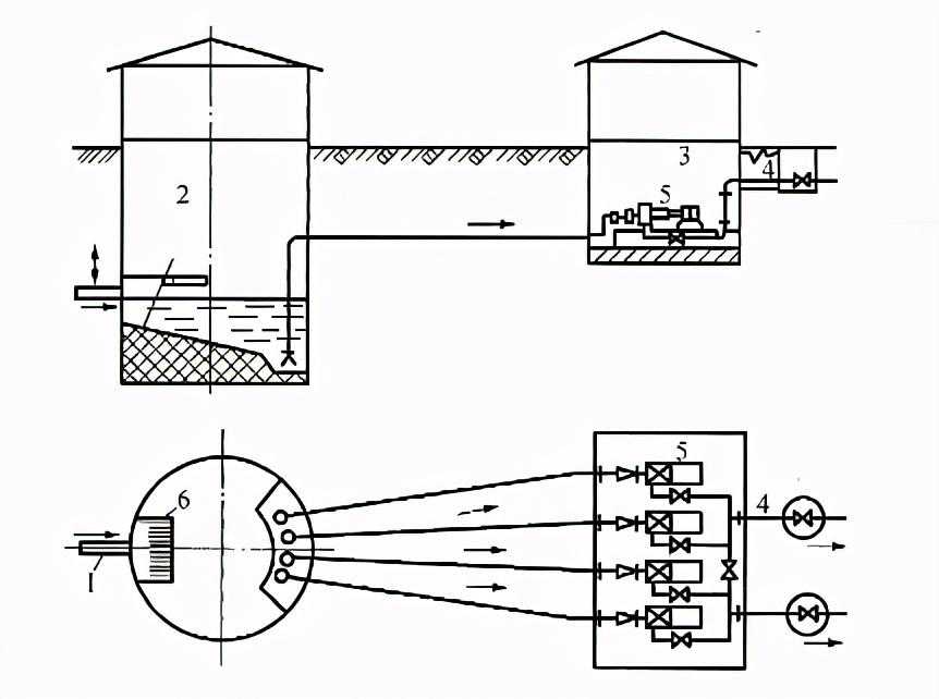
(二)合建式矩形泵站:适于大型泵站
优点:在机组、管道和附属设备的附属设备的布置较为方便,启动操作简单,易于实现自动化。电气设备置于上层。不易受潮,工人操作管理条件良好。
缺点:建造费用高。当土质差,地下水位高时,因不利施工,不宜采用。

1—排水管渠2—集水池3—机器间4—压水管5—立式水泵6—电机7—格栅
(三)分建式矩形泵站
优点:结构上处理比合建式简单,施工较方便,机器间没有污水渗透和被污水淹没的危险。
缺点:要抽真空启动,为了满足排水泵站来水的不均匀,启动水泵较频繁。

1—排水管渠2—集水池3—机器间4—压水管5—水泵6—格栅
设计要点:
水泵台数不多于4台的污水泵站和3台以下的雨水泵站,地下部分采用圆形结构最为经济。
当水泵台数超过4台时
地下及地上部分都可以采用矩形或由矩形组合成的多边形;
地下部分可采取集水池和机器间为分建筑物的布置方式,或将水泵分设在两个地下的圆形构筑物内,地上部分可以处理为矩形或圆形。这种布置适用于流量较大的雨水泵站或合流泵站
对于抽送会产生易燃易爆和有毒气体的污水泵站,必须设计为单独的建筑物,并应采取相应的防护措施。
泵站工程中最常用的水泵类型是叶片泵。叶片泵是一种使用面积广、量大的流体机械设备。由于应用场合、性能参数、输运介质和使用要求的不同,其品种及规格繁多、结构也呈各种各样的形式。按工作原理可分为:离心泵、混流泵和轴流泵;按泵轴的工作位置可分为:卧式泵、立式泵和斜式泵;按压出室的型式可分为:蜗壳式泵和导叶式泵;按叶轮的吸入方式可分为:单级泵和双吸式泵;按叶轮的个数可分为单级泵和双级泵。
德能泵业产品齐全,其中包含潜水排污泵、QKSG型高压潜水电泵、ZLB立式轴流泵、QZ(H)B潜水轴(混)流泵、QSZ中吸式潜水轴流泵及HW混流泵等。为了使泵正常高效地运转,公司提供控电柜、仪表等设备,同时公司提供技术支持。


重大水利工程是强化水旱灾害防治、优化水资源配置、改善水生态环境、促进流域区域协调发展的重要手段,在保障国家水安全中有着不可替代的基础性作用。




















