一、节能水泵介绍
国家提出了节能减排的口号,我们也应该越来越重视节能、水泵机械也属于高耗电耗能的机械设备,因此我们应该加快节能水泵产品投入与市场当中,这是节能水泵升级和对国家节能减排的号召的响应。
二、节能水泵的效果
上海长征泵阀根据原有循环离心泵泵产品的基础上优化设计出了一款节能循环离心泵产品,将需要11KW的电机在使用运行过程中实际使用功率只在7.5KW左右,这里举例说明同样是流量150扬程20米的水泵、普通的水泵在实际使用中低于15米的工况点使用时就容易出现流星变大导致电机的电流上升耗电功率也会增加、并且长时间运行后电机发烫轴承温度过高、最终轴承损坏出现电机烧毁的现象出现,而上海长征泵阀公司的节能水泵完全避免了此类现象的出现,20米扬程的泵只要在20米范围内任意工况点使用不会出现超流量导致超电流的现象出现,该款节能水泵叶轮的独特设计形成了一款恒流恒压节能水泵。
三、节能水泵原理
节能水泵原理是水泵水利模型设计比普通水泵更节能、模具应该是采用超高精度模具铸造而成、叶轮平衡必须采用电脑控制的叶轮平衡机制作而成、使用的电机也应该是非常高效的电机。例如上海长征泵阀高效节能水泵就是一款节能水泵产品,它采用的叶轮就是一款设计非常节能的叶轮,叶轮模具一律采用高精度铝模经过精密铸造成型叶轮流道非常光滑、叶轮材质一律采用双相不锈钢材质,整个叶轮设计成螺旋状的结构设计、配合叶轮引流口环使循环泵的自吸高度及效率更加在原有的基础上更节省能耗,再也不会像其他各种离心原理的泵类产品在低扬程工况使用时出现超流量导致超电流增加使用功率的现象出现。
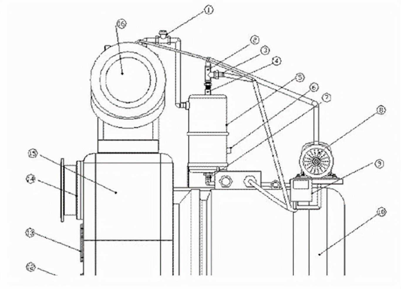
四、节能水泵叶轮实物图及节能水泵结构图
1、节能水泵叶轮实物图

2、节能水泵结构图

上海长征泵阀(集团)有限公司-离心泵|自吸泵|循环泵|节能水泵厂家




















