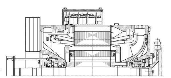
电机由定子、转子、支撑转子的前端盖(非传动端端盖)、后端盖(传动端端盖)、轴承、总装零件、测速装置等几大部件组成,电机断面图见图2。

定子
电机定子由定子铁心、定子绕组、接线盒等零部件组成,定子断面图见图3。定子铁
心采用无机壳结构,即用4块筋板将带有轴向通风孔的定子冲片、定子端板和两端的压圈在施压状态下焊接成一个整体,将成型的定子线圈嵌入定子铁心槽内,然后焊接内部绕组和引出线。带绕组的定子采用真空压力浸漆,满足绝缘等级200级的要求。
接线盒位于定子铁心上方,电机的内部引出线和外部电缆线在接线盒内通过接线板相连固定。

转子
电机转子由铁心、导条、端环、护环、风扇等零部件组成铜排鼠笼结构,转子断面图见图4。转子铁心由绝缘电工硅钢片迭压而成,冲片上开有轴向通风孔;鼠笼转子导条为矩形铜导条;转子导条两端用端环联接;端环外面套有护环。
转轴采用高强度合金钢,转子风扇采用铸铝合金离心式风扇结构。





















