
△项目外观©MohammadHassanEttefagh
CantileverHouse是一座位于伊朗达马万德的现代独立住宅,位于距离伊朗德黑兰60公里、海拔2400米,拥有强劲寒冬的达马凡德市摩沙。土地面积约为600平方米,尺寸为30x20米,坡度为20%。根据业主的描述,uc21Architects了解到这是一个全新的挑战,将在这充满限制的建筑基地上尽利用土地最大优势,通过设计获得更多可用的空间,以满足客户的需求。

△项目外观©MohammadHassanEttefagh

△悬臂式空间©MohammadHassanEttefagh
通过实地考察了解,uc21Architects决定将土地分为三部分:最大的一部分位于土地的北部,用于将建筑物安置在有相关道路的地方;第二部分用于户外娱乐活动,第三部分为地块绿地。

△项目分析图©uc21Architects
最好的设计是建造一座与周围山脉融合的别墅,给它一个与周围山脉相似的形状,使其能够将一些楼层的面积扩大1米,使其相互交替,这样就形成了球型的场地,不仅促进了雨水的排放,并且与周围环境非常协调。此外,决定将建筑设计成一栋完全白色的建筑,冬天与纷飞的大雪融为一体,让夏天变得更有重要的意义。建筑玻璃的表面被用来欣赏美丽的山景。


△建筑立面©uc21Architects
在此基础上,设计师将娱乐区设计于住宅的地下一楼,并能够直接连接到室外的娱乐空间,地下室娱乐区由按摩浴缸和微型酒吧吧台组成,室外娱乐区则包含了加热游泳池、供暖壁炉和一个多功能区。


△地下室©MohammadHassanEttefagh

△地下室楼梯©MohammadHassanEttefagh

△由室内看向泳池©MohammadHassanEttefagh


△泳池©MohammadHassanEttefagh


△凸出的建筑体量©MohammadHassanEttefagh
设计师将整体空间划分两个不同的体量空间,分为私人区域与公共区域,小体量用于设计客户主卧室,大体量则用于设计住宅出入口和客房。

△入口©MohammadHassanEttefagh

△前厅©MohammadHassanEttefagh

△主卧©MohammadHassanEttefagh



△客卧©MohammadHassanEttefagh
为了建筑能够增加更多空间和功能,设计师将其南部扩展两个体量并旋转30°,以便在西部多出一间卧室,同时拥有更大的主卧室。此外,建筑的延伸部分覆盖了部分游泳池,当寒冷的冬季来临,可为整个壁炉区域抵挡住下雪天,不影响在寒冷的冬天围着壁炉欣赏雪景。

△壁炉©MohammadHassanEttefagh
最后,设计师将住宅入口建于体量最大的北部部分,并将第三部分绿地用于停车。居住室垂直于较低的体量,容纳了日常生活需求的厨房和餐厅,延伸的功能附加了两个大型露台,可以欣赏到周围景观的壮观景色。

△建筑正面入口及绿地停车场©MohammadHassanEttefagh


△厨房©MohammadHassanEttefagh


△餐厅看观赏室外景色©MohammadHassanEttefagh


△顶楼空间©MohammadHassanEttefagh


△楼梯©MohammadHassanEttefagh


△夜景©MohammadHassanEttefagh
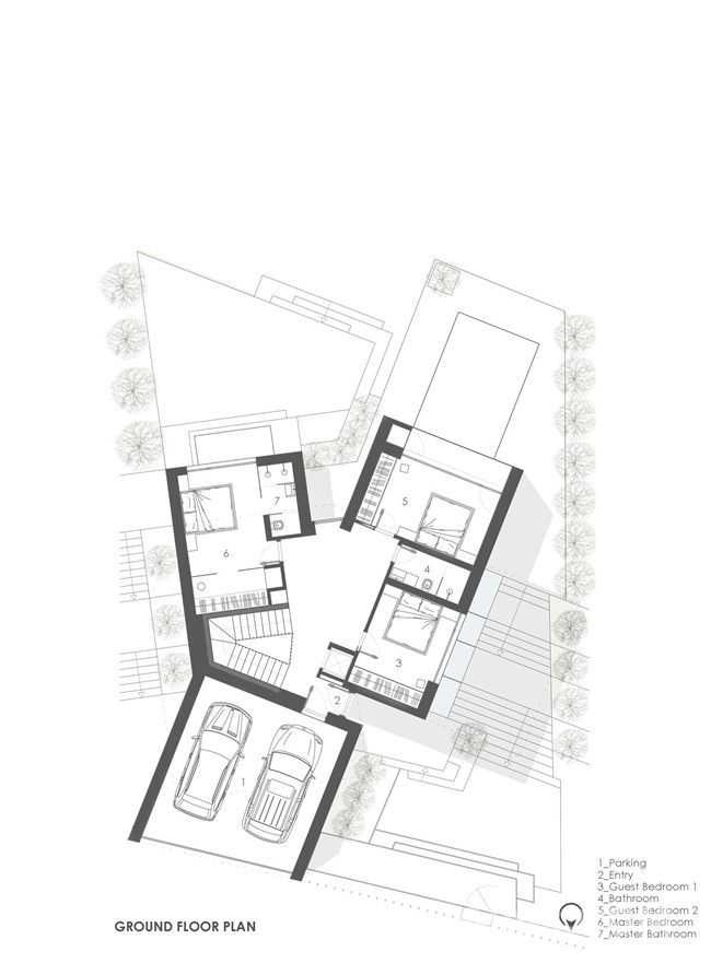
平面图





项目信息
ProjectName:CantileverHouseOffice
Name:uc21architectsFirm
Location:ItalyCompletion
Year:2021Gross
BuiltArea(m2/ft2):458m2
Projectlocation:Mosha,Damavand,IranLead
Architects:AminHaghighat
GouConstructors:MiladAhmadian,AminHaghighat
GouElectrical:Mehdi
SafeMechanical:AmirHossein
BorjiGraphic:AminHaghighat
GouPhotoCredits:MohammadHassanEttefagh
关于uc21Architectsuc
21Architects成立于2008年,是一家由12人组成的工作室,致力于在世界各地设计有意义的空间。该工作室位于一个有着丰富历史的杰出设计之城——罗马。设计包括且不限于住宅、办公大楼以及创造性的餐厅、公共领域和混合用途的开发。通过了解客户需求和飞跃进步的巨大设计和特定客户密切合作。以真实性、坚韧不拔的积极性提供有影响力与社会相关的设计方案,塑造身处的城市。





















